hero-image-0

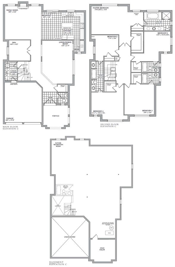
The Forest Spring Plan

Jefferson Forest
Sold
Sold
5
3
1
From 3,586
unit-banner-imageunit-banner-imageunit-banner-image
The Forest Spring Plan details
The Forest Spring Plan is now sold.
Check out available nearby plans below.