hero-image-0
hero-image-1
hero-image-2
hero-image-3

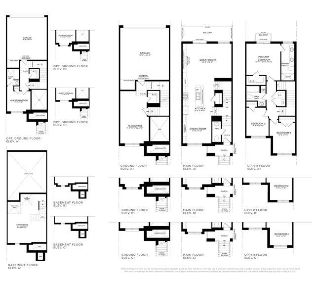
U2 - Int. Plan

Couture Collection
Sold
Sold
3
2
From 1,971
unit-banner-imageunit-banner-imageunit-banner-image
U2 - Int. Plan details
U2 - Int. Plan is now sold.
Check out available nearby plans below.