




























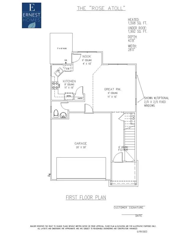
The "Rose Atoll" plan is 1,508 heated square feet with 3 bedrooms and 2.5 baths. It has an open floor concept connecting the living room, dining area, and kitchen to foster a social and interactive environment. The kitchen includes granite countertops, tall 42" upper cabinets, and stainless-steel appliances. The bedrooms are located on the second floor along with the laundry room. The home has energy-efficient windows and LED lighting. Every Ernest home includes spray foam insulation in the roof line, TRANE HVAC unit and is energy tested and rated. Your home will also be smart home ready with the TRANE Nexia Wi-Fi enabled thermostat.
Stay informed with Livabl updates on new community details and available inventory.