hero-image-0
The Paramount
Sold
Sold
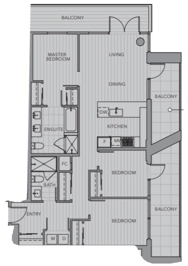
3
2
From 1,013
unit-banner-imageunit-banner-imageunit-banner-image
D6 Plan details
D6 Plan is now sold.
Check out available nearby plans below.