hero-image-0
The Paramount
Sold
Sold
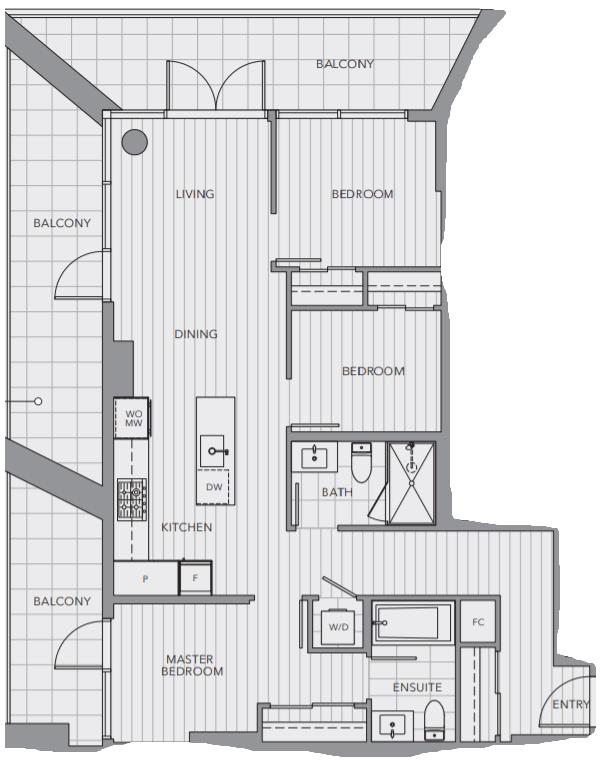
3
2
From 880
unit-banner-imageunit-banner-imageunit-banner-image
C8 Plan details
C8 Plan is now sold.
Check out available nearby plans below.