hero-image-0
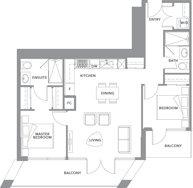
The Paramount
Sold
Sold
2
2
From 828
unit-banner-imageunit-banner-imageunit-banner-image
C5 Plan details
C5 Plan is now sold.
Check out available nearby plans below.