hero-image-0
The Paramount
Sold
Sold
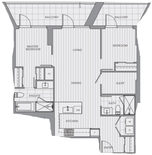
2
2
1
From 897
unit-banner-imageunit-banner-imageunit-banner-image
C19 Plan details
C19 Plan is now sold.
Check out available nearby plans below.