hero-image-0

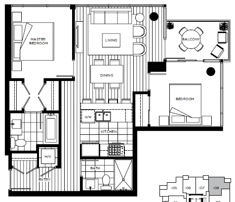
B Plan

By

Onni Group

   |   

Ora Phase 3

Ora Phase 3
Sold
Sold
2
From 805
unit-banner-imageunit-banner-imageunit-banner-image
B Plan details
B Plan is now sold.
Check out available nearby plans below.