hero-image-0

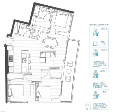
F2 Level 7 Plan

Galleria - Da Vinci
Sold
Sold
3
2
From 996
unit-banner-imageunit-banner-imageunit-banner-image
F2 Level 7 Plan details
F2 Level 7 Plan is now sold.
Check out available nearby plans below.