hero-image-0

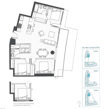
F1 Level 5 Plan

Galleria - Da Vinci
Sold
Sold
3
2
From 1,038
unit-banner-imageunit-banner-imageunit-banner-image
F1 Level 5 Plan details
F1 Level 5 Plan is now sold.
Check out available nearby plans below.