hero-image-0

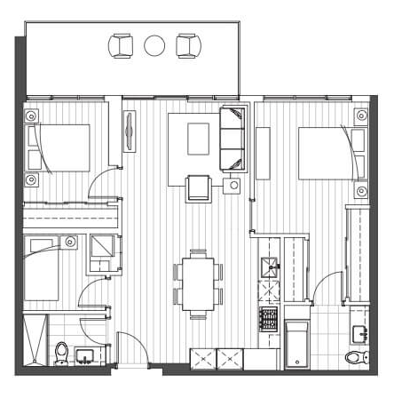
D8-ALTb Plan

Galleria - Da Vinci
Sold
Sold
2
2
1
From 898
unit-banner-imageunit-banner-imageunit-banner-image
D8-ALTb Plan details
D8-ALTb Plan is now sold.
Check out available nearby plans below.