hero-image-0
Concord Gardens Park Estates
Sold
Sold
2
2
1
From 851
unit-banner-imageunit-banner-imageunit-banner-image
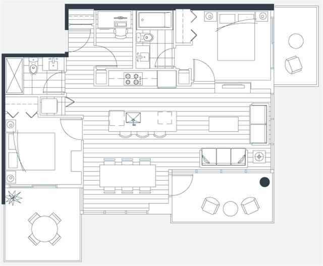
E6 Plan details
E6 Plan is now sold.
Check out available nearby plans below.