hero-image-0
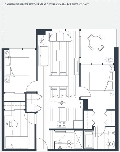
Concord Gardens Park Estates
Sold
Sold
2
2
1
From 880
unit-banner-imageunit-banner-imageunit-banner-image
C1 Plan details
C1 Plan is now sold.
Check out available nearby plans below.