hero-image-0
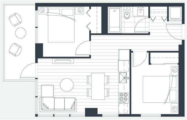
Concord Gardens Park Estates
Sold
Sold
2
1
From 575
unit-banner-imageunit-banner-imageunit-banner-image
A9 Plan details
A9 Plan is now sold.
Check out available nearby plans below.