hero-image-0
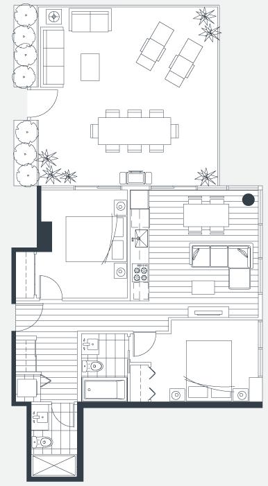
Concord Gardens Park Estates
Sold
Sold
2
2
From 693
unit-banner-imageunit-banner-imageunit-banner-image
A15 Plan details
A15 Plan is now sold.
Check out available nearby plans below.