hero-image-0
Atmosphere - Phase 1
For sale
For sale
Pricing coming soon
1
1
From 485
unit-banner-imageunit-banner-imageunit-banner-image
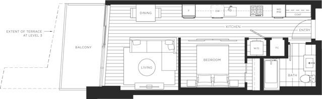
E1D1 Plan details

Contact sales center

Get additional information including price lists and floor plans.

Interested? Receive updates

Stay informed with Livabl updates on new community details and available inventory.