


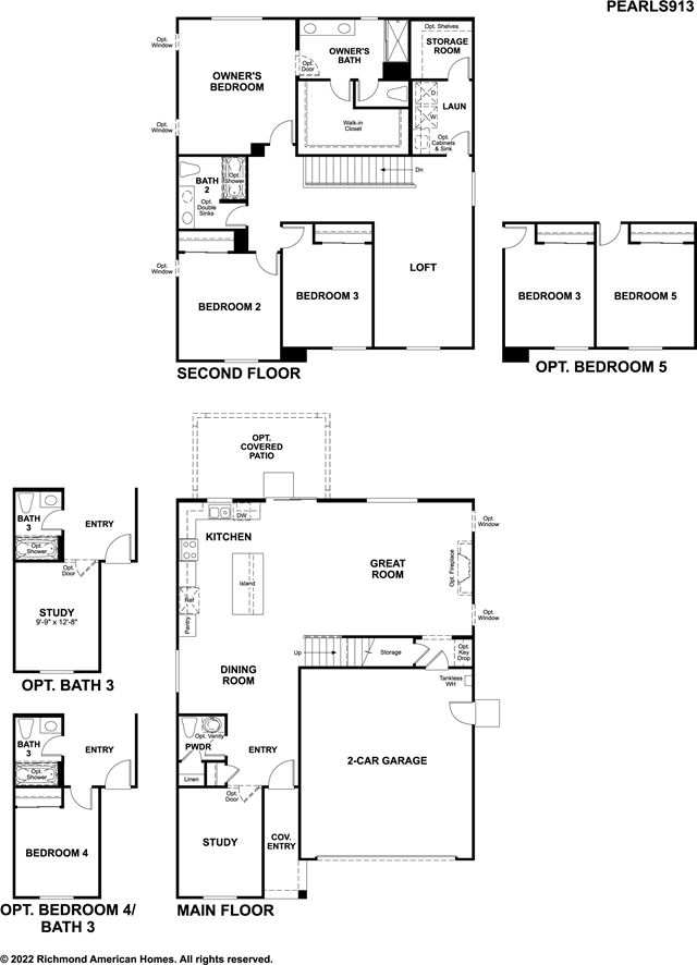
The Pearl floor plan opens with a powder room and a private study-personalize by optioning these as a third bathroom and a fourth bedroom instead. At the back of the home, you'll find a dining area, a great room with an optional fireplace, and a kitchen with a center island and access to the covered patio. Upstairs, the owner's suite includes a walk-in closet and an attached bathroom. The second floor also features a laundry, two bedrooms and a bathroom, in addition to a loft that can be optioned as fifth bedroom.