

















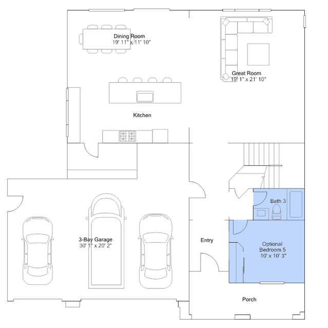
The first level of this two-story home is dedicated to communal living spaces, with an open floorplan where the Great Room, kitchen and dining room meet. Double doors open to a flex space off the entry. Upstairs, a loft is surrounded by four bedrooms, including a generous owners suite featuring an en-suite bathroom and a walk-in closet.