
















































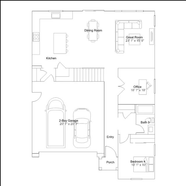
The first level of this two-story home is host to a spacious open floorplan shared between the kitchen, dining room and Great Room, with an office and secondary bedroom nearby. Sliding glass doors off the dining room lead to the outdoor space. Three more bedrooms surround a loft upstairs, including the luxe owners suite which is comprised of a restful bedroom, en-suite bathroom and walk-in closet.