




















































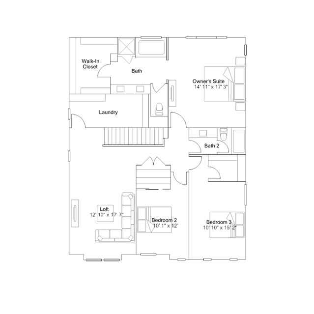
The first level of this two-story home is host to a spacious open floorplan, shared between the Great Room, kitchen and dining room, with sliding glass doors that lead to the outdoor space, ideal for entertaining. A secondary bedroom is found just off the entry. Three more bedrooms surround a loft upstairs, including the luxe owners suite which is complemented by a spa-inspired bathroom and walk-in closet.
Stay informed with Livabl updates on new community details and available inventory.