
























































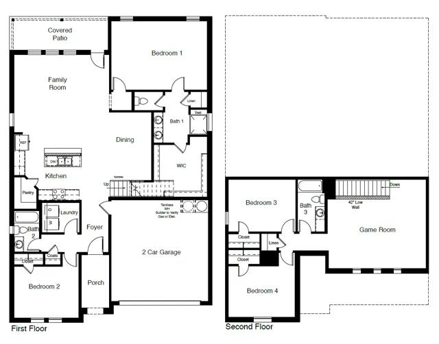
The Glenwood plan is a two-story, approx 2,527 sq. ft. home offering 4 bedrooms, 3 bathrooms, and a spacious game room. This home features an elongated front porch that opens in a foyer. You'll find one secondary bedroom and bathroom right off the foyer, along with a tiled utility room. Continue into a grand, wide open kitchen overlooking the living area and featuring spacious granite or quartz countertops, stainless steel appliances with gas cooking range, a large kitchen island and a walk-in corner pantry. Entertain guests in the spacious dining room area flowing from the kitchen. The main bedroom is located privately at the back of the home and features an ensuite bathroom complete with linen closet, a huge walk in closet, and large walk in shower with seat. Head upstairs through the game room to find the remaining two guest bedrooms and the third f...
Stay informed with Livabl updates on new community details and available inventory.