hero-image-0
hero-image-1

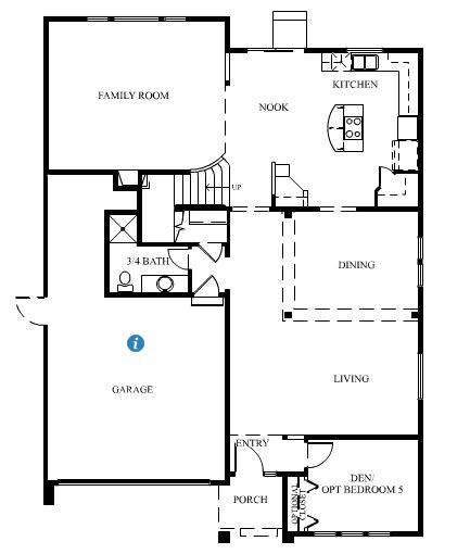
Melbourne Plan

By

D.R. Horton

   |   

Wembley Park

Wembley Park
Sold
Sold
4
2
1
From 3,221
unit-banner-imageunit-banner-imageunit-banner-image
Melbourne Plan details
Melbourne Plan is now sold.
Check out available nearby plans below.