hero-image-0
hero-image-1

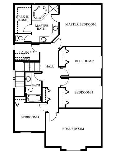
Cambridge Plan

By

D.R. Horton

   |   

Wembley Park

Wembley Park
Sold
Sold
4
2
1
From 2,297
unit-banner-imageunit-banner-imageunit-banner-image
Cambridge Plan details
Cambridge Plan is now sold.
Check out available nearby plans below.