hero-image-0
hero-image-1

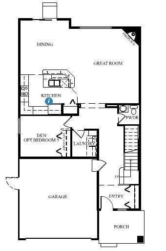
Bridgeport Plan

By

D.R. Horton

   |   

Wembley Park

Wembley Park
Sold
Sold
5
3
From 2,670
unit-banner-imageunit-banner-imageunit-banner-image
Bridgeport Plan details
Bridgeport Plan is now sold.
Check out available communities below.