










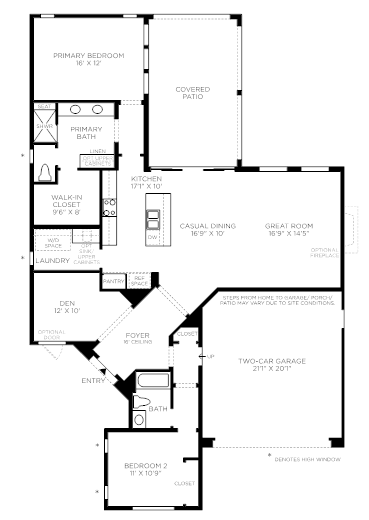
Urban luxe design and appointments. The Cambria's welcoming entry and foyer open onto the spacious great room and casual dining area, with views of the desirable large covered patio beyond. The well-designed kitchen is equipped with a large center island with breakfast bar, plenty of counter and cabinet space, and roomy pantry. The beautiful primary bedroom suite is enhanced by a generous walk-in closet and spa-like primary bath with dual-sink vanity, luxe glass-enclosed shower with seat, linen storage, and private water closet. The sizable secondary bedroom features an ample closet and shared full hall bath. Additional highlights include a bright office off the foyer, centrally located laundry, and additional storage.
Stay informed with Livabl updates on new community details and available inventory.