





























































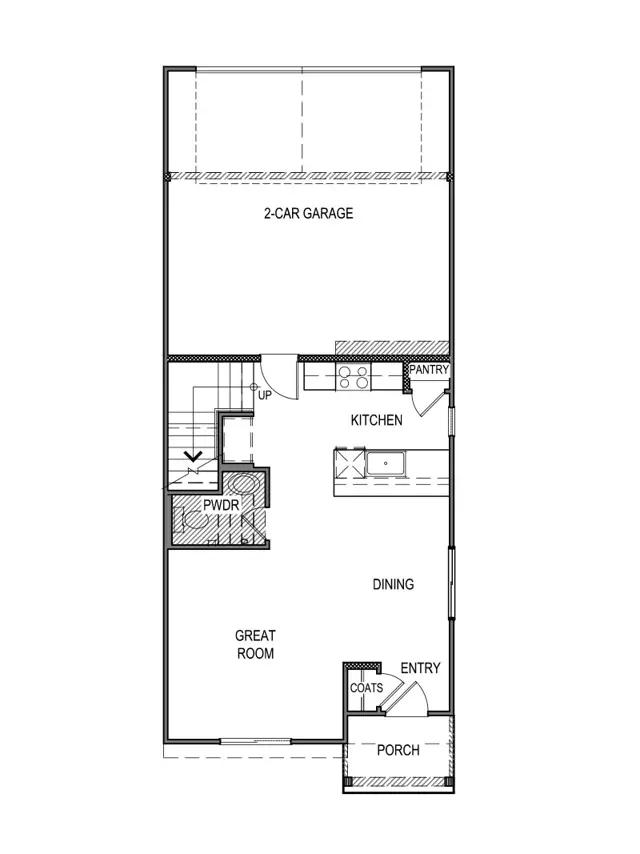
The Humboldt is a floorplan in our new home community, Monarch. This community features attached townhomes, and the Humboldt is our 1,409 sq. ft. option. With three bedrooms and 2.5 bathrooms, this two-story home also offers three exterior options. Choose from our Farmhouse, Craftsman, and West Coast design packages. When you enter the home, youll be greeted by an open-concept first floor with a great room, dining area, and kitchen. The modern kitchen, with shaker-style cabinetry, quartz countertops, and stainless steel appliances, is sure to please. Walking through the home, you can enter the 2-car garage near the kitchen. The first floor also features a powder room. Heading up the stairs to the second floor, youre greeted by the loft. The loft not only leads to the three bedrooms but also includes the laundry room, a linen closet for storage, and a secondary ...
Stay informed with Livabl updates on new community details and available inventory.