









































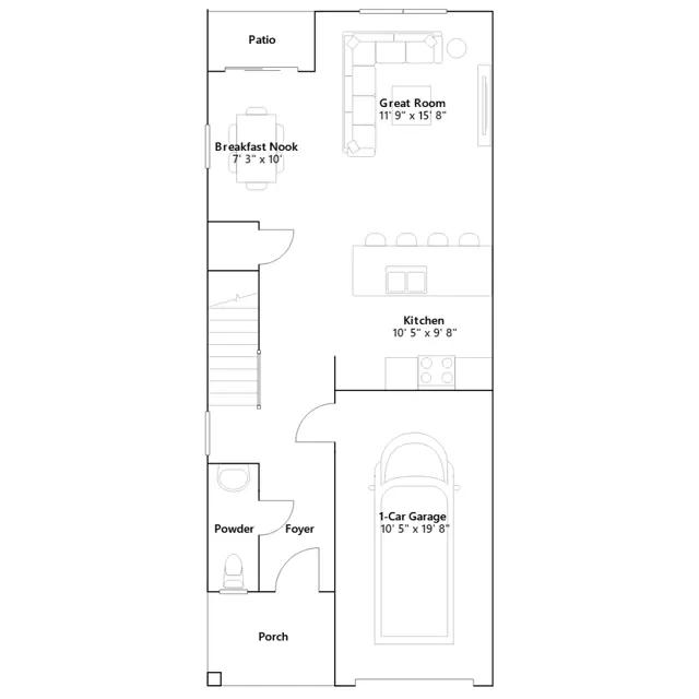
This new two-story townhome offers ample room to live and grow. The first floor features a spacious open-concept layout with convenient access to a patio for seamless entertaining and multitasking. Three bedrooms are located on the second floor, including the luxe owners suite at the front of the home with a full bathroom and walk-in closet.