hero-image-0
hero-image-1
hero-image-2

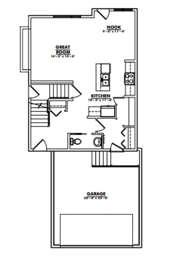
Juniper Plan

By

Crawford Homes

   |   

The Towns

The Towns
Not Available
Not available
Pricing unavailable
2
3
2
1
From 1,711
unit-banner-imageunit-banner-imageunit-banner-image
Juniper Plan details

Contact sales center

Get additional information including price lists and floor plans.

Interested? Receive updates

Stay informed with Livabl updates on new community details and available inventory.