






























































Get additional information including price lists and floor plans.
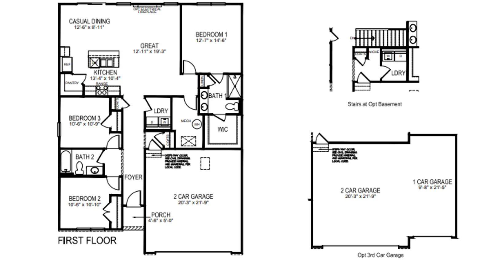
The Harmony is a ranch plan featured at Alexander Creek in Raymore, MO near Kansas City. This is a spacious and modern home designed with open-concept living carefully considered throughout. This home features three bedrooms, two bathrooms, and a two car garage. An inviting foyer greets you upon entering and leads you into the heart of the home. This open plan features a family room, dining room, and kitchen designed with entertaining in mind. The kitchen is equipped with a pantry, 36" cabinets with crown molding, quartz countertops with tile backsplash, stainless steel appliances, and a large island with a breakfast bar, making it perfect for both dining and guests. The luxurious primary suite offers a large walk-in closet and a primary bathroom with dual vanities and plenty of space to get ready. The additional two bedrooms share access to the secondary...
Stay informed with Livabl updates on new community details and available inventory.