

























































































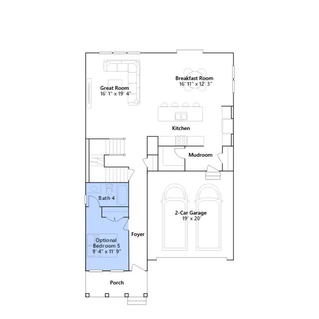
This new two-story home has a smart layout that offers space and convenience. The first floor is occupied by an office and the modern living area, which includes a well-equipped kitchen overlooking the Great Room and breakfast room. Found upstairs is a loft surrounded by three secondary bedrooms and the lavish owners suite with an adjoining bathroom.
Stay informed with Livabl updates on new community details and available inventory.