





































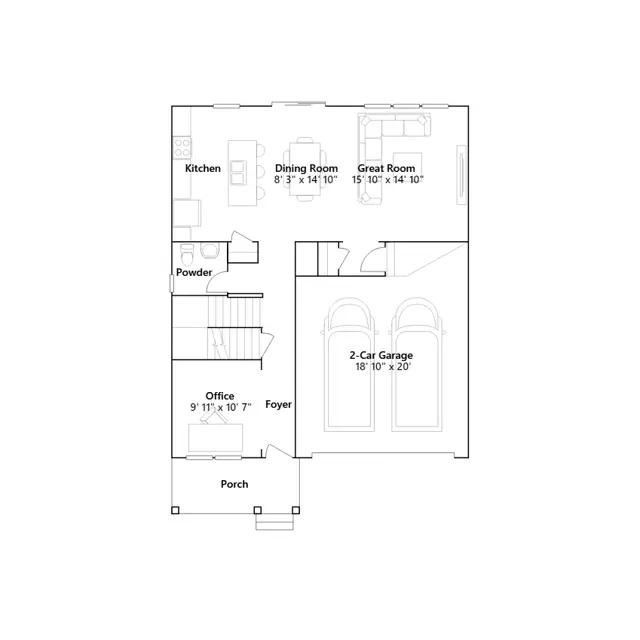
This spacious two-story home features an office by the foyer for at-home work, followed by an open-concept main living area with a kitchen, dining room and family room. The second level hosts all four bedrooms, including the owners suite with dual walk-in closets and a private bathroom. Completing the home is a two-car garage for versatile storage space.
Stay informed with Livabl updates on new community details and available inventory.