

























































































Get additional information including price lists and floor plans.
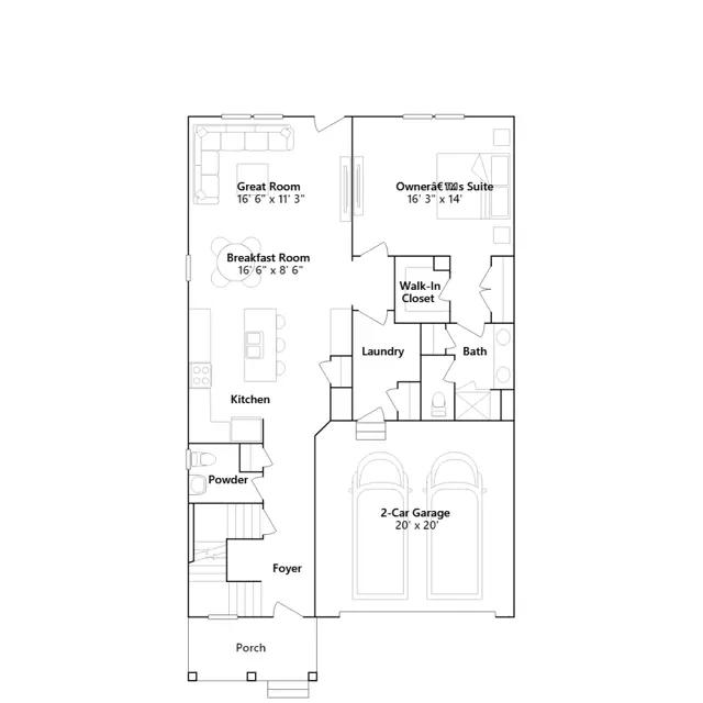
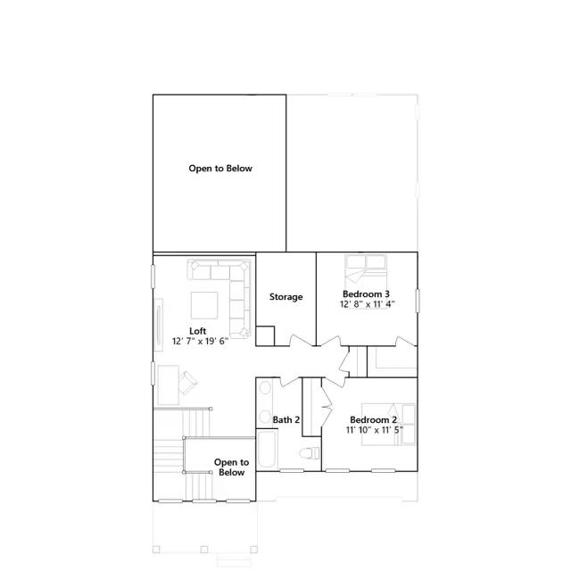
This new two-story home features a generous open floorplan shared between the kitchen, breakfast room and Great Room on the first level to promote seamless transitions between spaces. The owners suite is privately situated toward the back, complete with a full-sized bathroom and walk-in closet. A large loft that can function as another entertainment space and two restful bedrooms occupy the top floor.
Stay informed with Livabl updates on new community details and available inventory.