





















































































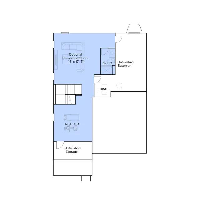
This two-story home showcases a first-floor formal living room to host guests, while at the back are the Great Room, kitchen and breakfast room arranged in a cohesive, open-plan layout. Upstairs caters to intimate spaces with a versatile loft area, three secondary bedrooms and the private owners suite with a full-sized bathroom. The unfinished basement features optional add-ons for extended living space.
Stay informed with Livabl updates on new community details and available inventory.