





















Images coming soon
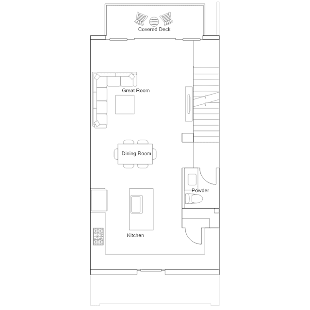
A flex space is found on the first level of this three-story townhome, ideal for working from home or even as a yoga studio. Upstairs, the living and dining spaces share an open floorplan that leads out to a covered deck through sliding glass doors. Two bedrooms, including the owners suite, occupy the top level.