
























































Get additional information including price lists and floor plans.
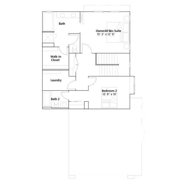
This new two-story home is ready for modern lifestyles. The first floor features an open-concept floorplan shared between the kitchen, living and dining areas, steps away from a convenient bedroom and full bathroom. Two additional bedrooms make up the second floor, including the lavish owners suite with an en-suite bathroom and walk-in closet.
Stay informed with Livabl updates on new community details and available inventory.