






































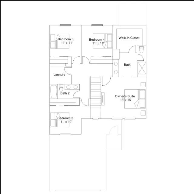
This two-story home showcases Lennars signature Next Gen suite, complete with a separate entryway, living room, kitchenette, bedroom and bathroom. The spacious open floorplan allows for effortless transition between the Great Room, kitchen and bathroom while sliding glass doors lead to the outdoor space. Four bedrooms occupy the second level, including the luxe owners suite.