

















Images coming soon
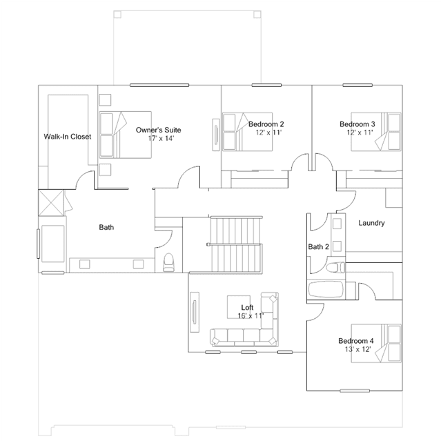
This two-story home welcomes residents and guests from the foyer with an open floorplan shared between the kitchen, nook, Great Room and dining room. Tucked away by the homes entryway is an office for a private working area and a secondary bedroom, perfect for overnight guests. Upstairs are three secondary bedrooms and a loft for additional shared living space, while the spacious owners suite features a generous-sized en-suite bathroom and walk-in closet.