















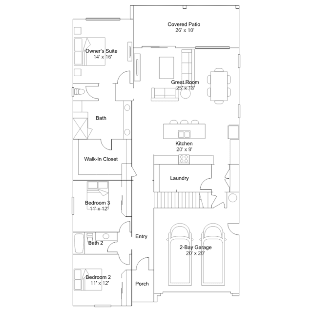
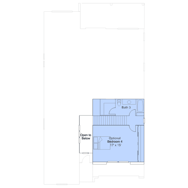
The first level of this two-story home is host to a generous open floorplan shared between the Great Room, kitchen and dining room, with sliding glass doors that lead to the patio for effortless indoor-outdoor living and entertaining. The owners suite is situated at the rear of the home, while two secondary bedrooms are great for overnight guests and household members. A bonus room is found upstairs.