









































Images coming soon
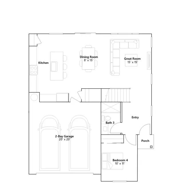
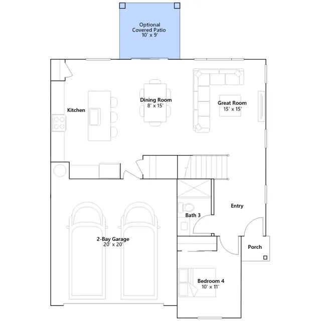
This new two-story home is designed for modern lifestyles. An inviting open-concept on the first floor combines the kitchen, living and dining areas to maximize interior space, and a secondary bedroom and full bathroom are located off the entry. At the top of the stairs is a spacious and flexible loft that offers a convenient shared living space adjacent to two secondary bedrooms and the lavish owners suite.
Stay informed with Livabl updates on new community details and available inventory.