





































Get additional information including price lists and floor plans.
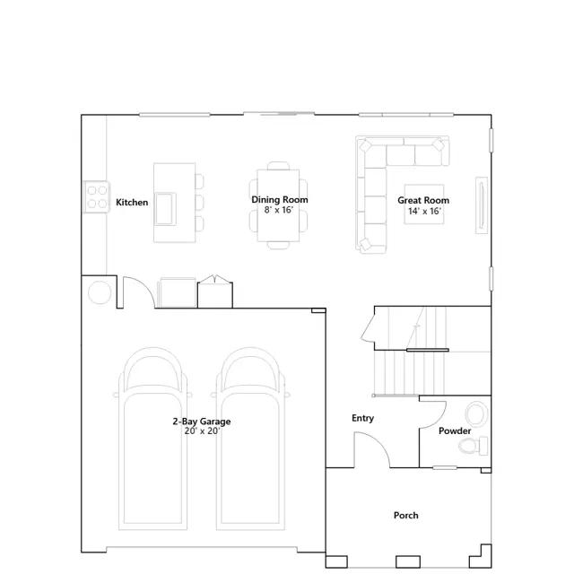
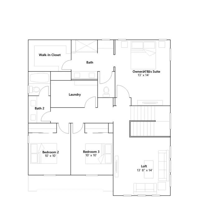
This new two-story home is host to an inviting open-concept floorplan on the first level consisting of the kitchen, dining room and Great Room to maximize interior space. On the second floor, a versatile loft provides a convenient shared living space easily accessible from two secondary bedrooms and the luxe owners suite, complete with a spa-inspired bathroom and walk-in closet.
Stay informed with Livabl updates on new community details and available inventory.