










































Get additional information including price lists and floor plans.
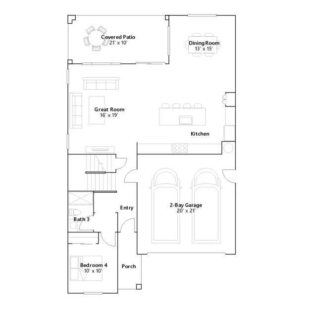
This new two-story home boasts a spacious layout offering ample room to live and grow. A full bathroom and secondary bedroom are located off the entry, leading to an inviting open-concept floorplan with access to a covered patio for effortless entertainment and leisure. On the second floor, three additional bedrooms surround a versatile loft, including the luxurious owners suite with a full-sized bathroom.
Stay informed with Livabl updates on new community details and available inventory.