



















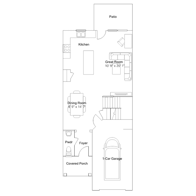
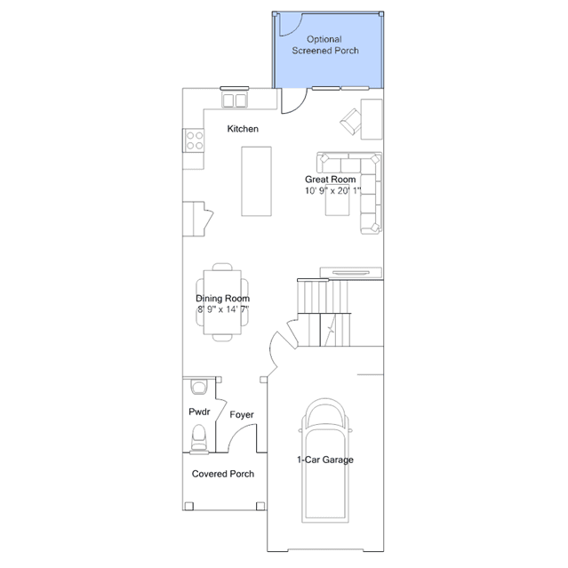
This new two-story townhome is designed for comfort and convenience. The main level features an open design among a gourmet kitchen with a center island, a dining room with a welcoming ambiance and a Great Room with a door to an outdoor patio. The upper level hosts three bedrooms including the owners suite with a walk-in closet and a spa-inspired bathroom.