


























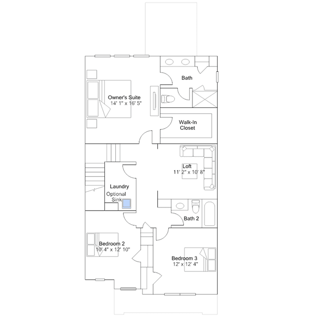
This new two-story townhome was designed with busy lifestyles in mind. The main level features a Great Room for family gatherings, a dining room for memorable meals, a kitchen for inspired cooking and a patio for outdoor living. Upstairs is a versatile loft and three bedrooms including the owners suite with a walk-in closet and private bathroom.