


































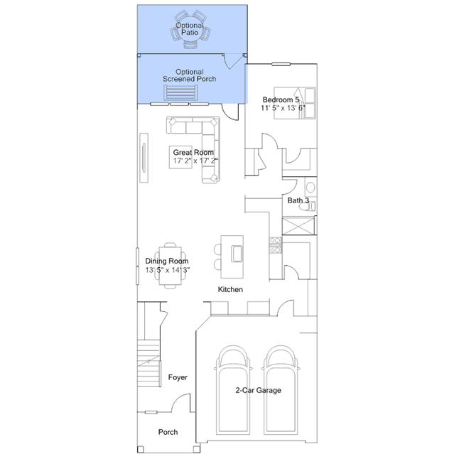
This new two-story home is optimized for gracious family living, with a first-floor Great Room for gatherings, a dining room for memorable meals, a kitchen for inspired cooks, a secondary bedroom for overnight visitors and a patio for outdoor living. The second floor hosts a loft and four bedrooms including the owners suite.