


































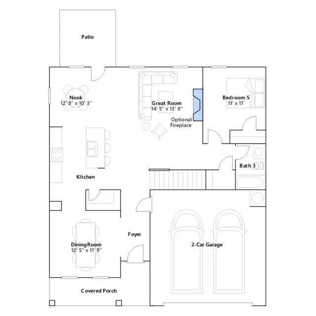
This spacious two-story home is an elevated twist on a classic design. A formal dining room greets residents upon entry, while down the hall is a spacious open-plan living area with direct access to the patio. On the same level is a secluded bedroom that can host overnight guests. Occupying the top floor is a sprawling game room ideal for entertainment and gatherings, which is surrounded by three secondary bedrooms and the lavish owners suite with a private bathroom.