



































































































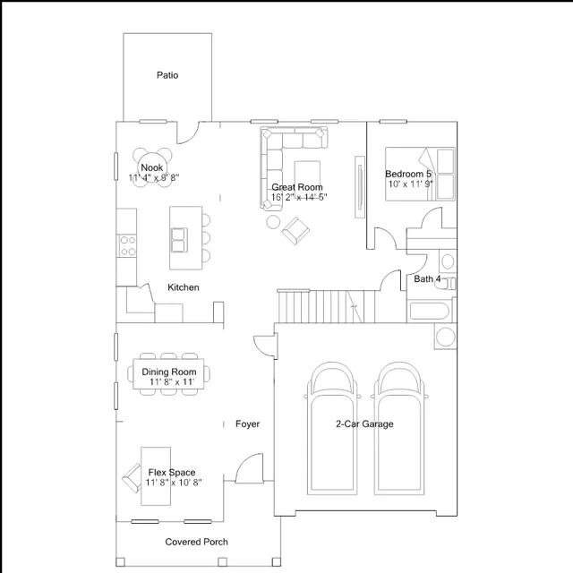
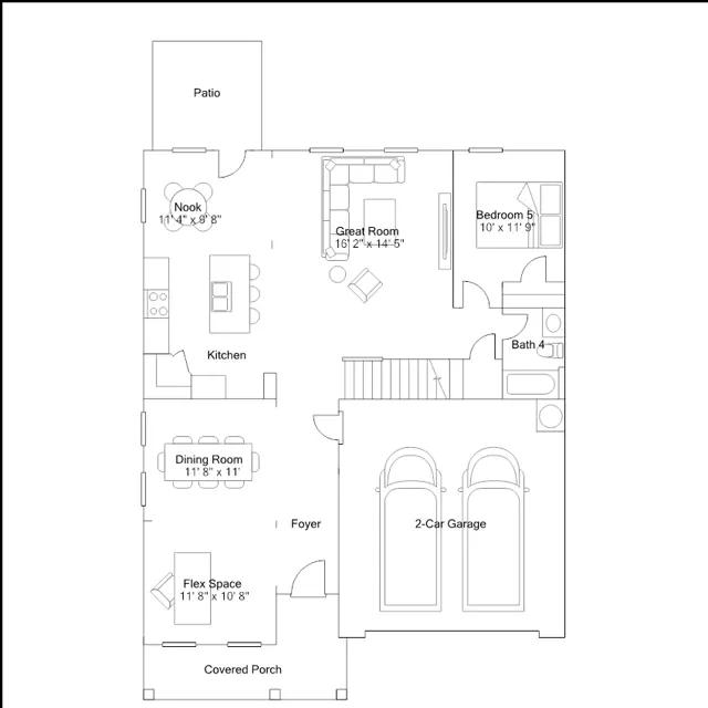
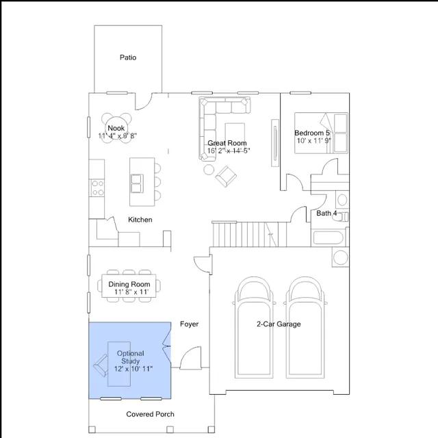
This new two-story home showcases a gracious design with abundant room to grow and entertain. The first floor offers a flex room and formal dining room that complements the casual Great Room and nook, plus a modern kitchen and attached patio. On the same level is a bedroom ideal for overnight guests, while upstairs are the game room and the remaining four bedrooms. The owners suite is a spacious escape with an adjoining bathroom and walk-in closet.