
























Get additional information including price lists and floor plans.
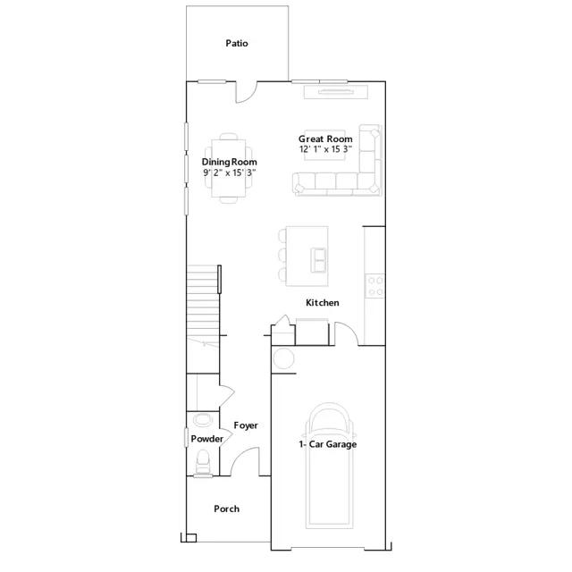
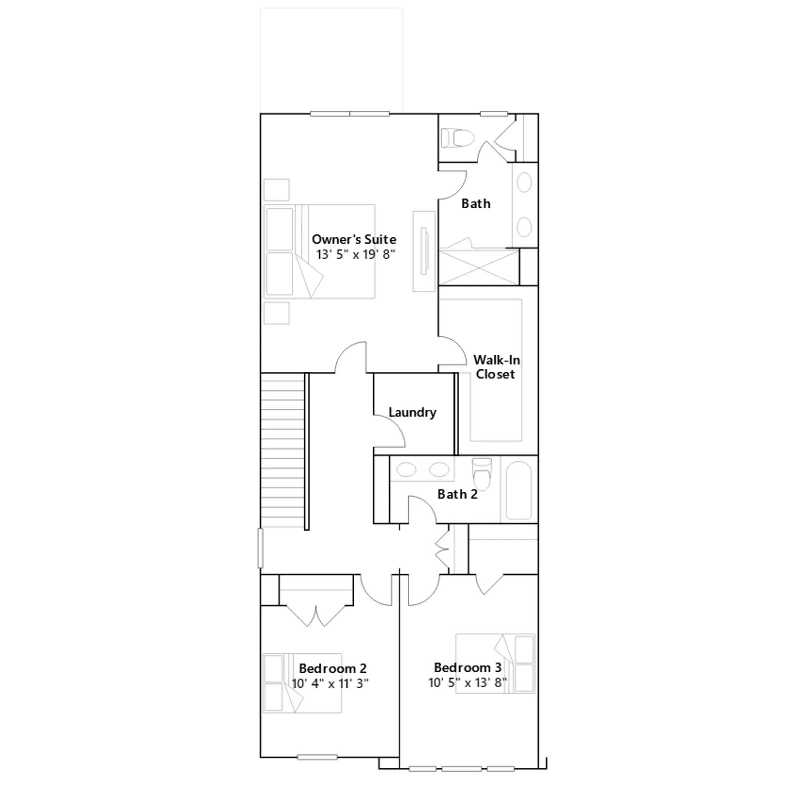
This new two-story townhome has an inviting contemporary design. The main-level Great Room flows seamlessly into the dining room and chef-caliber kitchen, while the patio is perfect for outdoor activities. Upstairs are two secondary bedrooms and the owners suite, complete with a walk-in closet and full-sized bathroom.
Stay informed with Livabl updates on new community details and available inventory.