


















































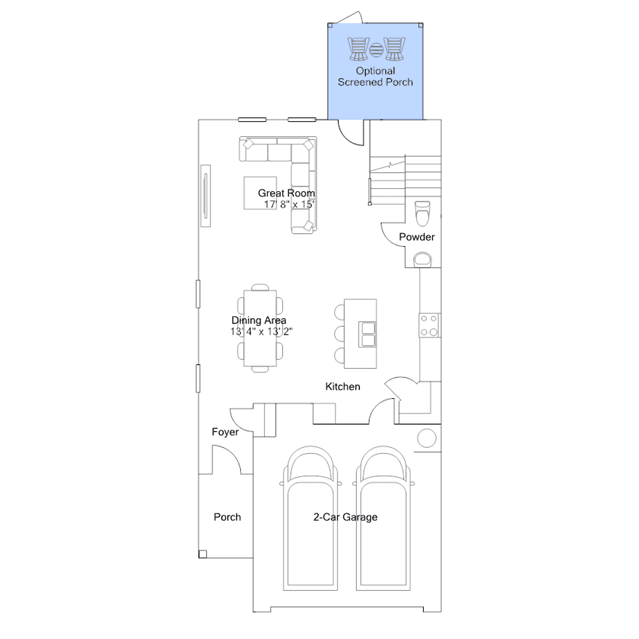
This new two-story home offers a main level with an open space among the Great Room, dining room and kitchen, leading to a patio for outdoor fun. Upstairs are a versatile loft, secondary bedrooms and an owners suite with a luxe bathroom and a walk-in closet.