



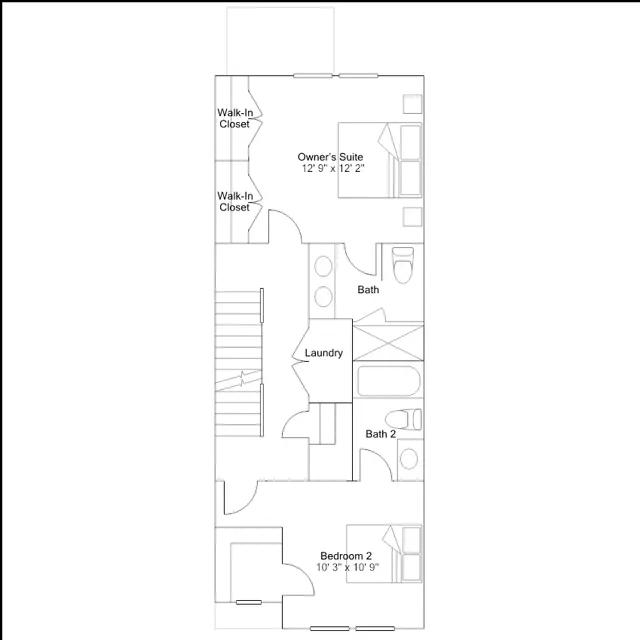
This new townhome-style condo is host to an inviting open-concept layout on the first level shared between the kitchen, living and dining areas to maximize interior space, and boasts luxury vinyl plan flooring for an upgraded look. The spacious kitchen island with granite countertops offers space to host and prep meals. An adjacent patio offers seamless outdoor entertainment and leisure. A spacious secondary bedroom shares the second floor with the luxurious owners suite, complete with a spa-inspired bathroom and walk-in closet. The washer-dryer hookups can be found in the hall closet of this floor as well. The third floor boasts a spacious loft and an additional bedroom that can be used as a dedicated home office or guest suite. Landscaping is included in the HOA fees, offering residents a low-maintenance lifestyle. Residents are steps away from the bustling do...