523
547 W 47th St - The West Residence Club
Hell's Kitchen, New York
410
516
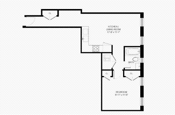
10B
200 East 59
Midtown East, New York
313
The Austin
Forest Hills, Queens
403
Fabric Astoria
Astoria, Queens
11B
316